Polivalentna dvorana Žatika

Vrijedno je zapamtiti nekoliko brojki: veličine dva rukometna igrališta, brutto razvijene površine od 14.000 m2, koja za sportske priredbe može primiti 3700 gledatelja.

Sama dvorana sastoji se od velike dvorane s gledalištem u koju se spušta iz ulaznog ophodnog hodnika. Fiksno gledalište smješteno je s tri strane sportskih terena – s južne, zapadne i istočne strane. Za potrebe velikih manifestacija tu će biti i teleskopske tribine smještene na južnoj strani ispod fiksnih tribina te montažne tribine postavljene uz sjevernu fasadu. Iznad južnih fiksnih tribina nadvit će se gledalište balkona. Građevina je ukupne bruto površine cca 14 tisuća četvornih metara.

Ukupni kapacitet fiksnih tribina iznosi 1.898 mjesta i 46 mjesta za VIP posjetitelje, te 46 invalidskih mjesta. Teleskopske tribine imaju 432 mjesta, odnosno 348 mjesta za vrijeme velikih natjecanja, kad se dio istočnih teleskopskih tribina može „spremiti“ i taj dio prostora koristiti za npr. režiju. Tu su i montažne tribine s 1.260 mjesta, što ukupno čini 3.626 odnosno u maksimalnoj varijanti 3.710 mjesta. Dodajmo i kako su sjedalice u crvenoj i sivoj boji, službenim bojama Grada Poreča.

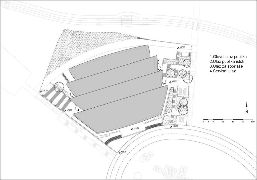
Građevina dvorane je smještena tako da prati prirodnu kosinu terena. Dužim i nižim pročeljem, potpuno ostakljenim, dvorana je orijentirana prema sjeveru, a bočnim punim stranama prema istoku odnosno zapadu. Na južnom dijelu je položena paralelno s obilaznicom Žatika.

Osim glavne velike dvorane tu je i mala dvorana površine 213 četvornih metara, te fitness dvorana površine 86 „kvadrata“, na istom nivou s glavnim igralištima. Uz glavne i prateće sadržaje u višenamjenskoj dvorani nalaze se i dodatni prostori za ugostiteljske i klupske potrebe, kao i niz povremenih i fleksibilnih (de)montažnih prostora za priredbe i sajmove

Etaža -2

Manja dvorana i prateće prostorije
Mala dvorana 213 m2 parket  58m2 epoksi pod
Fitnes dvorana 86 m2 parket
Garderobe (svlačionice) za sportaše – 2,  svaka s vlastitim sanitarijama
Garderobe (svlačionice) za trenere – 1

Velika dvorana i prateće prostorije
Dvorana  2527 m2 (52m * 48,6m) sportski pod-parket
Garderobe (svlačionice) za sportaše velike – 4, svaka s vlastitim sanitarijama
Garderobe (svlačionice) za sportaše manja – 4, svaka s vlastitim sanitarijama,dvije svlačionice dijele tuševe.
Ambulanata
Garderobe (svlačionice) za trenere – 3

Etaža -1
Sanitarije za gledatelje (M/Ž) - 4
Sanitarije za osobe sa invaliditetom (M/Ž)- 4
Press centar/Sala za sastanke
Sanitarije (za press centar i salu za sastanke)
Ulazi na tribine









Etaža 0
Ulazi za gledatelje sa zapadne i istočne strane
Blagajna
Teretana
Ulazni hall/ulazi na tribine
Vanjska terasa(pogodna za ugostiteljske sadržaje)











Etaža +1
Režija
Sanitarije (M/Ž) – 2
Vip tribine

Neto površine po etažama
Etaža +1       825 m2
Etaža   0     3.387 m2
Etaža -1      2.512 m2
Etaža -2      5.625 m2

Ostale mogućnosti
Velika dvorana pomoću pomičnih pregrada može se pretvoriti u dva usporedna košarkaška, rukometna ili odbojkaška terena.
Dva sportska semafora i dva video zida
Razglas
Lift
Ukupan kapacitet fiksnih tribina 1936
Dodatne teleskopske tribine 414
Invalidska mjesta 46
Mogućnost postavljanja montažnih tribina za velika natjecanja
Mogućnost korištenja interneta po svim etažama(fiksni priključci i wi-fi),
brzina 15/15 Mbps(mogućnost zakupa veće brzine)
Mogućnost hlađenja/klimatizacije
Razvodni ormari 125A na svakom kutu partera
 

Mapa »

Kontakt

Sportska zajednica grada Poreča
Nikole Tesle 16
52440 Poreč
Republika Hrvatska

Tel: +385 52 432 322